蒸汽小火车模型论坛

 找回密码
 注册账号
搜索

蒸汽小火车的DIY制作------从最简单的开始

2017-10-10 21:52| 发布者: admin| 查看: 2| 评论: 0|原作者: 蒸汽小虫

摘要: 蒸汽小虫讲蒸汽小火车DIY大法之手泵的制作

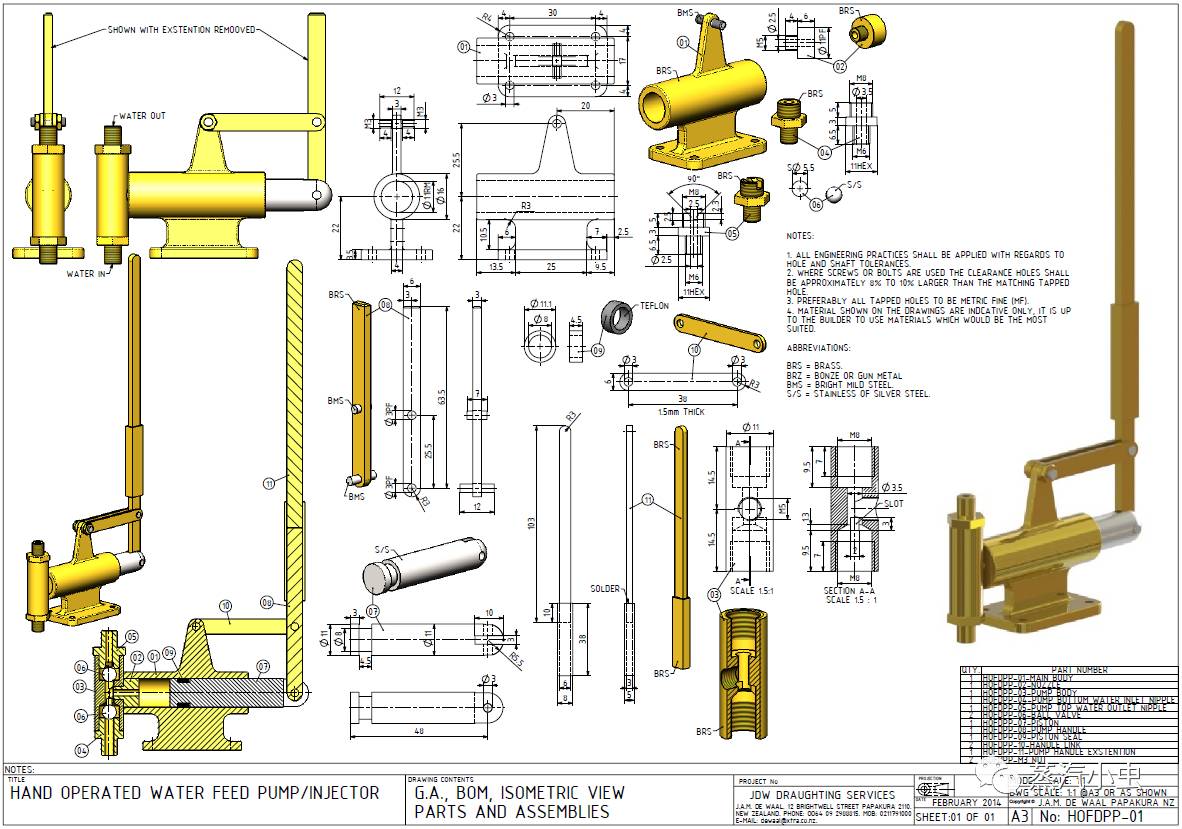
手泵一般是蒸汽动力小火车或者蒸汽机模型的锅炉通用配件,一方面可以用来做锅炉的水压静态测试,一方面可以在锅炉工作时候为锅炉注水。蒸汽小虫希望能够分享给大家一些DIY蒸汽小火车的简单技巧,今天就从最简单的手泵开始!资深玩家请照顾初学者的心态和热情,不要觉得这个文章太low


上图为使用手泵监测锅炉的密封性(蒸汽小虫曾经专门论述该方法)


说到手泵,蒸汽小虫可以列举一百种不同形态结构的的制作方案,但是其基本原理都是一样的,就是通过手动杠杆把水箱中的水压入到锅炉中,此外要有止逆装置,密封也要做到靠谱哟。


蒸汽小虫先多给些栗子看看不同形态的小手泵。



诸位玩家在制作时候,请考虑到不同设计的一些约束。此外对于这个小手泵的主体部分,既可以用铸造来制作,也可以用铜条钎焊的方法来制作。打孔之后,处理内部结构问题,内部的活塞密封需要氟胶圈。


这个手泵的手柄可以做成可拆卸的,这样就能预先把小手泵固定在小锅炉的水箱里面,使用的时候把手柄插进去就可以了。


制作方法嘛,请具体看下面的制作的栗子(这个栗子有铸造的部件,玩家可以自行设计修改):



有心从简单开始学习制作蒸汽小火车或者蒸汽机模型的朋友,可以在本论坛的图纸区下载哟,而且近期蒸汽小虫将推出新的压水手泵通用件DIY毛坯,欢迎关注。



(蒸汽小虫文章皆为原创内容,部分图片和视频资料来自于网络,欢迎投稿)


鲜花

握手

雷人

路过

鸡蛋

Archiver|手机版|小黑屋|蒸汽小火车模型论坛 ( 京ICP备17056826号

GMT+8, 2017-10-10 21:54 , Processed in 0.138101 second(s), 21 queries .

Powered by Discuz! X3.3

© 2001-2017 Comsenz Inc.

返回顶部